Usługi oświatowe na terenie osiedla Slow City w Krakowie

Forum dla osób, które już kupiły lub chcą kupić nowe mieszkanie w Krakowie w inwestycji Slow City, za którą odpowiada deweloper Ekopark. Zapraszamy do wymiany informacji i opinii na forum.
Magda97
Posty: 4
Rejestracja: 11 mar 2024, 0:12

Usługi oświatowe na terenie osiedla Slow City w Krakowie

Postautor: Magda97 » 11 mar 2024, 0:15

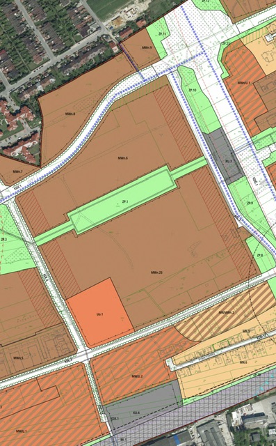
Co kryje się pod nazwą usługi oświatowe ? Czy ktoś się orientuje czy postawią przed C1 budynek czy może coś w rodzaju placu zabaw?


slowww
Posty: 82
Rejestracja: 14 gru 2020, 0:28

Re: Usługi oświatowe na terenie osiedla Slow City w Krakowie

Postautor: slowww » 11 mar 2024, 0:22

Magda97 pisze:Co kryje się pod nazwą usługi oświatowe ? Czy ktoś się orientuje czy postawią przed C1 budynek czy może coś w rodzaju placu zabaw?

A gdzie ma powstać coś takiego w ramach osiedla albo po sąsiedzku? Mnie to kojarzy się ze żłobkami / przedszkolami w takim miejscu. Ale szczegółów nie znam i chętnie się dowiem.

Bambi00
Posty: 5
Rejestracja: 13 lut 2024, 15:03

Re: Usługi oświatowe na terenie osiedla Slow City w Krakowie

Postautor: Bambi00 » 11 mar 2024, 20:12

Zgodnie z planem zagospodarowania przestrzennego przyjętym dla tego terenu. W lewym dolnym rogu osiedla ma powstać placówka oświatowa (ten pomarańczowy kwadrat), którą podobno ma wybudować deweloper. Biorąc pod uwagę wielkość wydzielonego obszaru, raczej stawiałabym na jakąś podstawówkę z boiskiem (i może z jakimś państwowym przedszkolem). Ale kiedy ma się to wydarzyć, to już niewiadoma.
Załączniki
IMG_2189.jpeg
IMG_2189.jpeg (119.75 KiB) Przejrzano 7408 razy



Wróć do „Slow City Kraków od Ekopark - forum mieszkańców osiedla”

Kto jest online

Użytkownicy przeglądający to forum: Obecnie na forum nie ma żadnego zarejestrowanego użytkownika i 2 gości