Park Residence ul. Lasówka tuż obok Parku Rzecznego Płaszów / deweloper Terra Casa - opinie na forum

Budowy nowych mieszkań i domów w Krakowie i innych miastach - zdjęcia, relacje, nowe informacje, ceny mieszkań.
claw_of_war
Posty: 2
Rejestracja: 30 sty 2026, 17:23

Re: Budowa ul. Lasówka Kraków tuż obok Parku Rzecznego Płaszów / deweloper Terra Casa - opinie na forum

Postautor: claw_of_war » 30 sty 2026, 17:26

fjrc pisze:Wizualizacje


Masz może więcej wizualizacji? Jestem ciekawy, jak będą wyglądały wnętrza.

Wygląda nienajgorzej, lokalizacja też spoko, ale czy ten wysoki budynek przy Myśliwskiej nie będzie zabierał całego światła?


AgaSi
Posty: 1
Rejestracja: 04 lut 2026, 11:26

Re: Park Residence ul. Lasówka tuż obok Parku Rzecznego Płaszów / deweloper Terra Casa - opinie na forum

Postautor: AgaSi » 04 lut 2026, 12:50

Miały być 3 kondygnacje naziemne, a na wizualizacjach 4-piętrowe budynki.

Sakowich
Posty: 30
Rejestracja: 15 cze 2020, 17:44

Re: Park Residence ul. Lasówka tuż obok Parku Rzecznego Płaszów / deweloper Terra Casa - opinie na forum

Postautor: Sakowich » 04 lut 2026, 14:58

AgaSi pisze:Miały być 3 kondygnacje naziemne, a na wizualizacjach 4-piętrowe budynki.


3 segmenty, a nie kondygnacje.


fjrc
Posty: 428
Rejestracja: 24 sty 2024, 22:38

Re: Park Residence ul. Lasówka tuż obok Parku Rzecznego Płaszów / deweloper Terra Casa - opinie na forum

Postautor: fjrc » 27 lut 2026, 12:40

Oferty prawdopodobnie jeszcze nie wypuścili albo nie potrafię znaleźć.
Ma ktoś dostęp?

fjrc
Posty: 428
Rejestracja: 24 sty 2024, 22:38

Re: Park Residence ul. Lasówka tuż obok Parku Rzecznego Płaszów / deweloper Terra Casa - opinie na forum

Postautor: fjrc » 09 mar 2026, 11:45

Dodali opis i powstała strona ale jeszcze jest w budowie.

parkresidencekrakow.pl

Park Residence to inwestycja mieszkaniowa Terra Casa powstająca w Krakowie, w zielonej części miasta w sąsiedztwie Parku Rzecznego Płaszów. Projekt obejmuje kameralny zespół nowoczesnych budynków mieszkalnych o niskiej zabudowie, harmonijnie wpisanych w otoczenie i zaprojektowanych z myślą o komforcie codziennego życia. Inwestycja oferuje funkcjonalne mieszkania o zróżnicowanych metrażach, zaprojektowane z myślą o rodzinach oraz osobach poszukujących spokojnego miejsca do życia blisko natury, a jednocześnie z wygodnym dostępem do infrastruktury miejskiej. Park Residence łączy nowoczesną architekturę z kameralnym charakterem zabudowy i wysokim standardem realizacji, tworząc przestrzeń sprzyjającą odpoczynkowi, aktywności na świeżym powietrzu oraz budowaniu lokalnej społeczności.

Projekt wpisuje się w filozofię Terra Casa „sztuka budowania” polegającą na tworzeniu inwestycji dopasowanych do otoczenia, wyróżniających się architekturą, funkcjonalnością i dbałością o jakość w każdym detalu oraz obecnością elementów sztuki.

fjrc
Posty: 428
Rejestracja: 24 sty 2024, 22:38

Re: Park Residence ul. Lasówka tuż obok Parku Rzecznego Płaszów / deweloper Terra Casa - opinie na forum

Postautor: fjrc » 21 mar 2026, 10:38

Widok od strony parku
Załączniki
IMG_0446.png
IMG_0446.png (138.62 KiB) Przejrzano 1120 razy

fjrc
Posty: 428
Rejestracja: 24 sty 2024, 22:38

Re: Park Residence ul. Lasówka tuż obok Parku Rzecznego Płaszów / deweloper Terra Casa - opinie na forum

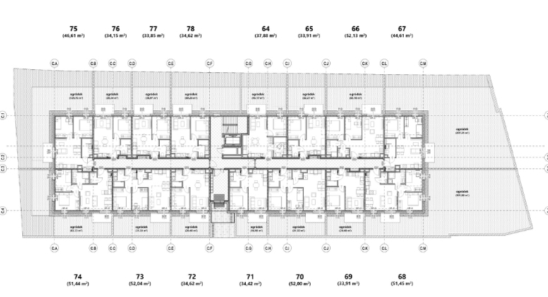
Postautor: fjrc » 21 mar 2026, 10:39

Rzuty kondygnacji
Załączniki
IMG_0444.jpeg
IMG_0444.jpeg (162.02 KiB) Przejrzano 1120 razy
IMG_0443.jpeg
IMG_0443.jpeg (141.19 KiB) Przejrzano 1120 razy
IMG_0445.jpeg
IMG_0445.jpeg (134.38 KiB) Przejrzano 1120 razy

Mmmm1989
Posty: 1
Rejestracja: 22 mar 2026, 20:03

Re: Park Residence ul. Lasówka tuż obok Parku Rzecznego Płaszów / deweloper Terra Casa - opinie na forum

Postautor: Mmmm1989 » 22 mar 2026, 20:06

Tam będzie tylko jeden wyjazd z osiedla na stronę parku?


fjrc
Posty: 428
Rejestracja: 24 sty 2024, 22:38

Re: Park Residence ul. Lasówka tuż obok Parku Rzecznego Płaszów / deweloper Terra Casa - opinie na forum

Postautor: fjrc » 23 mar 2026, 1:25

Mmmm1989 pisze:Tam będzie tylko jeden wyjazd z osiedla na stronę parku?


Tak i parking podziemny połączony pod wszystkimi budynkami.
Załączniki
IMG_0468.jpeg
IMG_0468.jpeg (241.79 KiB) Przejrzano 938 razy

niesasanka
Posty: 77
Rejestracja: 11 mar 2019, 12:40

Re: Park Residence ul. Lasówka tuż obok Parku Rzecznego Płaszów / deweloper Terra Casa - opinie na forum

Postautor: niesasanka » 01 kwie 2026, 8:52

Oferta jest już w przedsprzedaży. Ceny za np. mieszkania 70-metrowe to ok. 18 tys./m2. Za tyle to można w okolicy mieć wykończone mieszkanie :D
A, jeszcze garaż za 70 tys., też piękna cena. Ale nie wątpię, że już znaleźli się chętni na największe mieszkania. Kto bogatemu zabroni ;)
Ostatnio zmieniony 02 kwie 2026, 19:30 przez niesasanka, łącznie zmieniany 1 raz.



Wróć do „Nowe inwestycje mieszkaniowe w Krakowie - bloki, apartamentowce, domy”

Kto jest online

Użytkownicy przeglądający to forum: Google Adsense [Bot] i 43 gości