[Bud. D] Rozpoczęcie sprzedaży mieszkań w II etapie osiedla Dąbska Street (Dasta)
[Bud. D] Rozpoczęcie sprzedaży mieszkań w II etapie osiedla Dąbska Street (Dasta)
strona dewelopera zawiera juz 2gi etap
Re: [Bud. D] Rozpoczęcie sprzedaży mieszkań w II etapie osiedla Dąbska Street (Dasta)
To dobre wieści, że ruszyła już oficjalnie sprzedaż, wiadomo coś więcej o tym, jakie ceny zrobił deweloper Dasta na lokale w II etapie Dąbska Street? Jest drożej czy taniej niż w poprzedniej edycji osiedla?
Re: [Bud. D] Rozpoczęcie sprzedaży mieszkań w II etapie osiedla Dąbska Street (Dasta)
Ceny są na stronie: dastainvest.pl/inwestycja/dabska2etap
Pozdrawiam
Pozdrawiam
Re: [Bud. D] Rozpoczęcie sprzedaży mieszkań w II etapie osiedla Dąbska Street (Dasta)
Ilość mieszkań dostępnych w ramach drugiego etapu jest już bardzo niewielka, stąd chciałbym zapytać czy posiada ktoś z Was informacje kiedy spodziewać się można uruchomienia sprzedaży kolejnego etapu.
Re: [Bud. D] Rozpoczęcie sprzedaży mieszkań w II etapie osiedla Dąbska Street (Dasta)
etap trzeci i czwarty (łącznie- jest to teoretycznie jeden budynek więc budowany będzie razem) wg mojej wiedzy ma być rozpoczęty w momencie oddania etapu drugiego
Re: [Bud. D] Rozpoczęcie sprzedaży mieszkań w II etapie osiedla Dąbska Street (Dasta)
Dzisiaj rozmawiałem z Dastą i chcą jeszcze w tym roku ruszyć z budową 3 i 4 etapu.
Re: [Bud. D] Rozpoczęcie sprzedaży mieszkań w II etapie osiedla Dąbska Street (Dasta)
w takim razie miałem nieaktualne informacje. To nawet lepiej, im szybciej całość osiedla zostanie wybudowana, tym lepiej.
Widzę, że pozwolenie budowlane już jest. Co ciekawe, wygląda na to, że będzie jakiś lokal usługowy. Byłaby to świetna wiadomość, jakaś żabka albo mini piekarnia na osiedlu to byłaby bomba

Widzę, że pozwolenie budowlane już jest. Co ciekawe, wygląda na to, że będzie jakiś lokal usługowy. Byłaby to świetna wiadomość, jakaś żabka albo mini piekarnia na osiedlu to byłaby bomba

Re: [Bud. D] Rozpoczęcie sprzedaży mieszkań w II etapie osiedla Dąbska Street (Dasta)
Gosc123 pisze:w takim razie miałem nieaktualne informacje. To nawet lepiej, im szybciej całość osiedla zostanie wybudowana, tym lepiej.
Widzę, że pozwolenie budowlane już jest. Co ciekawe, wygląda na to, że będzie jakiś lokal usługowy. Byłaby to świetna wiadomość, jakaś żabka albo mini piekarnia na osiedlu to byłaby bomba
Lokali usługowych ma nie być, z racji tego ze osiedle jest ogrodzone
Re: [Bud. D] Rozpoczęcie sprzedaży mieszkań w II etapie osiedla Dąbska Street (Dasta)
tak, ale być może lokal usługowy będzie na zewnętrznej ścianie, dostępny tylko od zewnątrz. Myślę, że warto sprawdzić z Dastą bo w kilku kwestiach zmieniali już zdanie. Ostatnio np., zostałem poinformowany, że nie wiadomo czy będzie "budka" ze "strażnikiem" (nienormalny pomysł swoją drogą) podczas gdy ponad rok temu tak było mówione. O zmianach w projekcie osiedla (ostatniego etapu) już nie wspominam
Re: [Bud. D] Rozpoczęcie sprzedaży mieszkań w II etapie osiedla Dąbska Street (Dasta)
Mi mówili, że raczej nie będzie ogrodzone, tylko ma być budka ze strażnikiem i szlaban. Ale jest to wersja z zeszłego roku.
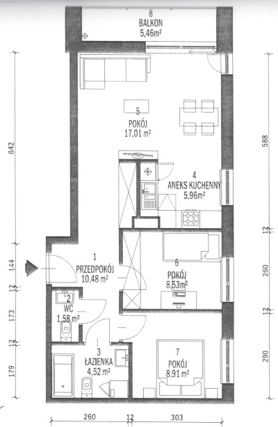
Dodatkowo zmieniły się rzuty dla narożnych mieszkań po prawej stronie budynku. Okno balkonowe jest przesunięte do prawej ściany.
Rzut jest z aktualizowanego prospektu z zeszłego tygodnia.
Dodatkowo zmieniły się rzuty dla narożnych mieszkań po prawej stronie budynku. Okno balkonowe jest przesunięte do prawej ściany.
Rzut jest z aktualizowanego prospektu z zeszłego tygodnia.
- Załączniki
-
- rzut mieszkania.jpg (56.46 KiB) Przejrzano 9653 razy
Wróć do „Dąbska Street Kraków od Dasta Invest - forum mieszkańców osiedla”
Kto jest online
Użytkownicy przeglądający to forum: Obecnie na forum nie ma żadnego zarejestrowanego użytkownika i 3 gości