Cześć,
zastanawiam się nad dwoma mieszkaniami i może coś doradzicie.
Pierwsze znajduje się w inwestycji Art City (między aleją Pokoju, a ul. Mogilską). 9 piętro, okna PN-ZACH, rzut w załączniku.
Drugie jest w Apartamentach Kaskada na Prądniku czerwonym - obok osidla Dobrego. 5 piętro, okna WSCH-ZACH, rzut w załączniku.
Kaskada nie posiada dostępu do tramwaju (podobno autobusy tam bardzo często jeżdżą - rondo Barei), jest dalej, okolica mocno zabetonowana. Raczej na spacer nie ma gdzie wyjść. Art City natomiast ma świetną komunikację tramwajową, Wisła całkiem blisko, obok powstaje ciekawe Fabryczna City.
Odwracając wady i zalety to Kaskada wydaje mi się mieć dużo lepszy układ mieszkania i jest o 60 tysięcy tańsze (po dodaniu kosztów miejsc postojowych). Zastanawiam się nad wyborem między tymi dwoma. Mieszkanie ma być dla mnie, a nie na wynajem - przynajmniej na daną chwilę. Co wedle Was wydaje się ciekawszą opcją?
Pozdrawiam
Lokalizacja, czy układ i cena / którą inwestycję w Krakowie wybrać
Lokalizacja, czy układ i cena / którą inwestycję w Krakowie wybrać
- Załączniki
-
- kas01.png (252.83 KiB) Przejrzano 12500 razy
-
- art01.png (230.43 KiB) Przejrzano 12500 razy
Re: Lokalizacja, czy układ i cena / którą inwestycję w Krakowie wybrać
Obok Kaskada ma byc tramwaj. Jaka cena jest tam za m^2?
Re: Lokalizacja, czy układ i cena / którą inwestycję w Krakowie wybrać
Za wybrane mieszkania ceny za metr to:
- Art City - 9400zł / m2 (+ 39k za miejsce postojowe)
- Kaskada - 7882zł / m2 (+ 32k za miejsce postojowe na osobnej księdze wieczystej)
O tym tramwaju przy kaskadzie to już wieeeele lat opowiadają i dalej brak konkretów. Może Ty coś wie=ęcej wiesz na ten temat to chętnie się dowiem.
- Art City - 9400zł / m2 (+ 39k za miejsce postojowe)
- Kaskada - 7882zł / m2 (+ 32k za miejsce postojowe na osobnej księdze wieczystej)
O tym tramwaju przy kaskadzie to już wieeeele lat opowiadają i dalej brak konkretów. Może Ty coś wie=ęcej wiesz na ten temat to chętnie się dowiem.
Re: Lokalizacja, czy układ i cena / którą inwestycję w Krakowie wybrać
Ja bym wzięła Art City. Dobra lokalizacja będzie tylko rosła na cenie. Choć jest sporo negatywnych opinii dot. jakości wykonania (grupa na . Art City Kraków Mieszkańcy). Nie wiem, jak z jakością w Kaskadzie.... co do układów- moim zdaniem porównywalny, jedynie brak oddzielnego WC. Może da się go gdzieś wcisnąć jeśli jest etap budowy? Z tego co wiem, Eko-Park robi zmiany lokatorskie (nie wszyscy developerzy robią).
Re: Lokalizacja, czy układ i cena / którą inwestycję w Krakowie wybrać
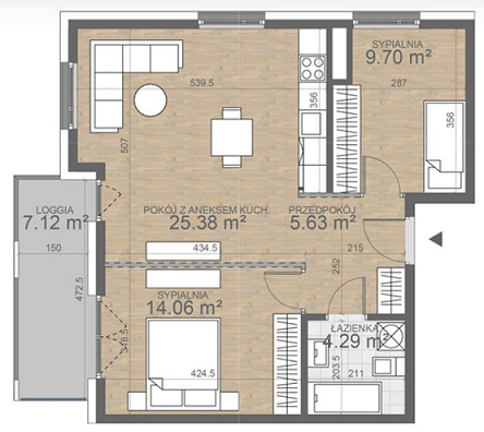
Czy ja wiem, czy takie porównywalne - w Kaskadzie masz lepsza separację części jadalno-kochennej od wypoczynkowej - niby metraż taki sam 25m, ale jakoś lepiej to można wszystko poukładać - przykłady w załączonych zdjęciach. Pomijam drugą toaletę, ale zwróć uwagę, że w Art City jest problem nawet z szafą w przedpokoju (jedynie jakaś taka mała tam wejdzie).
Pytanie czy wywindowane ceny art city, rzeczywiście w przyszłosci pójdą jeszcze w górę (od półtora miesiąca nie zeszło im ani jedno mieszkanie), a cena kaskady nie. No ale nikt przyszłości nie przewidzi.
Pytanie czy wywindowane ceny art city, rzeczywiście w przyszłosci pójdą jeszcze w górę (od półtora miesiąca nie zeszło im ani jedno mieszkanie), a cena kaskady nie. No ale nikt przyszłości nie przewidzi.
- Załączniki
-
- kaskada.png (189.74 KiB) Przejrzano 12252 razy
-
- art.png (184.78 KiB) Przejrzano 12252 razy
Re: Lokalizacja, czy układ i cena / którą inwestycję w Krakowie wybrać
Patrząc na te układy, to mam wrażenie, że w Apartamentach Kaskada Kraków, jednak znacznie łatwiej byłoby oddzielić kuchnię od salonu i zrobić z tego osobny pokój oraz osobną kuchnię i do tego jasną. Pewnie nikt tego nie będzie robił teraz, ale myślę, że warto mieć taką możliwość. Nie wiem czemu, ale mieszkanie w Kaskadzie wydaje się bardziej przestronne, to większy metraż? Wystawa też lepsza, skoro nie ma okien na północ. Lokalizacja Art City Kraków lepsza - spacerem można się przejść na Kazimierz czy na Bulwary Wiślane, dostępne tramwaje na al. Pokoju i na Mogilskiej. Ale jeżeli chodzi o Kaskadę, to także nie jest źle, z przystanku Rondo Barei jeździ sporo autobusów, całkiem szybko można się stamtąd dostać np. na Rondo Mogilskie. Można też zejść na przystanek Bora-Komorowskiego i śmigać stamtąd 501 i 502, a to całkiem szybkie autobusy. Tramwaj pewnie kiedyś zbudują, ale trudno powiedzieć dokładnie kiedy. Poza tym niedaleko Multikino, Park Wodny, Serenada, tereny zielone i rekreacyjne na dawnym lotnisku. Jedno i drugie ma swoje plusy. Zastanowiłbym się jeszcze nad tym, co będzie widać z okna 
Re: Lokalizacja, czy układ i cena / którą inwestycję w Krakowie wybrać
Sprawdź jeszcze jak są położone mieszkania inne na piętrze i jak ich układy.
Łazienka moim zdaniem lepiej położona jest w artcity. To samo dwie trochę bardziej niezależnie sypialnie i różnej wielkości wg potrzeb.
Z drugiej strony w artcity poszły do góry ostatnio, ale miejsce jest całkiem blisko i dobrze skomunikowane.
Najlepiej pojedź sobie w swoich godzinach pracy i zobacz jak z dojazdem, bo to jest to co będzie cię codziennie wkurzać. Po godzinach szczytu w Krakowie można mieszkać w dowolnym miejscu.
Łazienka moim zdaniem lepiej położona jest w artcity. To samo dwie trochę bardziej niezależnie sypialnie i różnej wielkości wg potrzeb.
Z drugiej strony w artcity poszły do góry ostatnio, ale miejsce jest całkiem blisko i dobrze skomunikowane.
Najlepiej pojedź sobie w swoich godzinach pracy i zobacz jak z dojazdem, bo to jest to co będzie cię codziennie wkurzać. Po godzinach szczytu w Krakowie można mieszkać w dowolnym miejscu.
Re: Lokalizacja, czy układ i cena / którą inwestycję w Krakowie wybrać
My chcemy postawić na mieszkania od tego dewelopera dom-bud.pl/Inwestycje/zaczarowany-mlyn-ul-kaczary , bo chyba liczy się też dla nas lokalizacja w większej częsci. Mamy dzieci i chcemy, żeby jednak miały one jakiś kontakt z zielenią a widzę, że tutaj tego nie brakuje i do tego jest plac zabaw. Znajomi już im zaufali i polecają nam tego dewelopera. Poza tym widzę, że i cena u nich nie jest zła za metr, więc chyba całkiem poważnie będziemy rozważać ich ofertę.
Re: Lokalizacja, czy układ i cena / którą inwestycję w Krakowie wybrać
No to gratuluję wyboru. To osiedle akurat nie przypadło mi do gustu, ale może dlatego, że byłem tam w zimie - wtedy wszędzie zimno i szaro.
Re: Lokalizacja, czy układ i cena / którą inwestycję w Krakowie wybrać
Obok kaskady to ma byc nawet metro! A w sumie tam jest pas startowy i bedzie cogniteon niedaleko jest tez serenada. Ja bym bral tansze
Wróć do „Gdzie i jak kupić mieszkanie w Krakowie forum? Ciekawe w Małopolsce”
Kto jest online
Użytkownicy przeglądający to forum: Obecnie na forum nie ma żadnego zarejestrowanego użytkownika i 12 gości